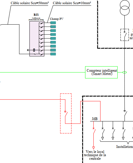
Étude des solutions hydromécaniques

Ce service proposent des solutions innovantes pour améliorer l'efficacité et la performance des pompes et des systèmes hydromécaniques. Nous utilisons notres connaissances pour fournir des solutions efficaces et rentables aux besoins de leurs clients.

Les clients de ce service comprennent des entreprises de tous les secteurs, notamment l'industrie, les infrastructures, l'énergie et l'environnement.

Dimensionnement de pompes

Le dimensionnement de pompes est un processus complexe qui nécessite une compréhension approfondie des différents types de pompes, des lois de l'hydrodynamique et des principes de la mécanique.

Les facteurs à prendre en compte lors du dimensionnement d'une pompe comprennent :

* Le débit : Le débit est la quantité de fluide que la pompe doit déplacer.
* La pression : La pression est la force exercée par le fluide.
* La hauteur manométrique totale (HMT) : La HMT est la somme de la hauteur totale, de la pression souhaitée et des pertes de charges.
* Le type de liquide : Le type de liquide à pomper affecte le choix de la pompe.
* Les conditions d'application : Les conditions d'application, telles que la température et la corrosion, doivent également être prises en compte.

Assistance technique

L'équipe de ce service offre une assistance technique aux clients pour les aider à choisir, installer et maintenir leurs pompes et systèmes hydromécaniques. Il fournisse des conseils et des formations sur la conception, l'installation et l'entretien des pompes.

brand

Installation et Maintenance des Equipements Hydromécaniques et Travaux divers.

Adresses

BP: 6138 OUJDA ESSAADA

inew.oujda@gmail.com

Inscription à la Newsletter

Enregistrez votre e-mail avec nous
pour recevoir toutes les nouvelles.